Yenilikçi bir ürün olan Slidex motorlu açılır cam çatı sistemi, üstün performans ve estetik görünümüyle öne çıkıyor. Bu sistem, kullanıcıların iç mekanlarında doğal ışığın tadını çıkarmalarını sağlarken aynı zamanda konforlu bir ortam sunuyor.
Sistemimizin en önemli özelliklerinden biri, ısı yalıtımlı profillere sahip olmasıdır. Bu sayede, iç mekan sıcaklığını istenen seviyede tutabilirken enerji tasarrufu sağlanır. Ayrıca, lamine+temperli ısıcam özellikli camlarımız, yüksek ısı yalıtımı sağlar ve aynı zamanda güvenli bir kullanım sunar.
Flat belt özel kayış sistemi, sessiz ve sorunsuz bir hareket imkanı sağlar. Bu sayede, cam çatınızı açıp kaparken istenmeyen gürültüleri minimuma indirirken rahat bir kullanım deneyimi yaşamanızı sağlar.
Dahili su tahliye ve oluk sistemi, yağmur suyunun düzgün bir şekilde tahliye edilmesini sağlar. Böylece, yağmurlu havalarda bile iç mekanınızı kuru tutar ve su birikintilerinin oluşmasını engeller.
Slidex motorlu açılır cam çatı sistemi, hem işlevsel hem de estetik bir çözüm sunarak mekanlarınıza modern bir dokunuş katıyor. Doğal ışığın iç mekanlarınızı aydınlatmasına olanak tanırken, kullanıcı dostu özellikleriyle de konforlu bir yaşam alanı sunar.
Sunroof- Akıllı Cam Çatı Özellikleri
- %100 Su İzolasyonu
- %98 Hava İzolasyonu
- Sistem Camları 6 mm şeffaf temper + 16mm HB + 6mm Şeffaf Temper 62/44 Cool Plus Nitelikli Isı Cam Kombinasyonu Uygulanmaktadır.
- Çelik fitilli termoplastik poliüretan 92° :ISO 17396
- İletilebilirlik, 30 kwmax
- Yüksek aşınma direnci
- Sıcaklık dayanımı -25°C to + 80°C;
Slidex Akıllı Cam Çatı Sistemi, Size Benzersiz Bir Deneyim Sunar !
Akıllı Cam Çatı(Hareketli) Sistemi; açık alanlarda alüminyum ve çelik konstrüksiyon üzerine
kurularak uzaktan kumanda ile açılıp kapatılabilen, ısı cam özelliği ile sizi olumsuz hava şartlarından
korumak için mekan ölçülerinize göre özel olarak projelendirilerek tasarlanan dış mekan sistemidir.
Raylı sistem komple açıldığında %70’e kadar açık alan oluşturmaktadır.Sisteme perde ve aydınlatma ürünleri entegre edilebilir.

Slidex ürünlerinde zor kirlenen ve kolay temizlenebilen, İsviçre QualiCoat kalite sistem ve onay kuruluşu sertifikalı Texture ve Soft Touch boyalar kullanılmaktadır.

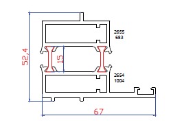
Sistemin hareketini sağlayan dikey kaset profili 52x67x3mm ölçülerinde ekstrüzyon alüminyum profildir. Bu profile sistemin çalışmasını sağlayan dört(4) adet, sekiz(8) rulman taşıyıcı araba monte edilmektedir. Bu profil, Avrupa standartlarında boyanabilir ısı bariyer özellikli ısı yalıtımlı profildir.

Slidex sistemlerinde EPDM Conta teknolojisini kullanmaktadır. Bu sayede yalıtım konusunda en yüksek verim sağlanır.

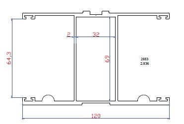
Ray profili 69x120x2mm ölçülerinde, iç odacıklı, m/2836gr ağırlığında ekstrüzyon alüminyum profildir. Ray profili çelik konstrüksiyon kurularak 6 metre ileri açılım yapabilir. Ray üzerindeki silindir kanallar, kanat rulmanlarının hareketini sağlayan ray detayıdır.

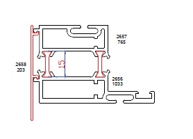
Sistem camlarının birbirine kenetlenmesini sağlayan kenetli yatay kaset profili 70x45x3mm ölçülerinde ekstrüzyon alüminyum cam tutucu kaset profilidir. Bu profil, Avrupa standartlarında boyanabilir ısı bariyer özellikli ısı yalıtımlı profildir.

Güçlendirilmiş ve Çelik ile desteklenebilir duvar bağlantı profili ile Stabilizasyon en üst seviyede !
Slidex ‘ten yılın her mevsiminde doğayla iç içe bir yaşam alanı !
Estetiği ve işlevselliği bir araya getiren, EPDM conta ile mükemmel yalıtım sağlayan özelliklerin birleştiği mükemmel bir seçenek!
Yılın her mevsiminde doğayla iç içe bir yaşam alanı mı istiyorsunuz? Slidex size en iyisini sunmak adına Ar-Ge çalışmalarına hız kesmiyor.
Kaliteyi en uygun fiyata sizlerle buluşturmanın zamanı geldi. Size Slidex ‘in Avrupa ‘da çok satanlar listesinde bulunan Winter Garden- Kış Bahçesi ni sunmaktan mutluluk duyarız !